Projekt Details

  • Standort: 35°21’42.4″N 33°07’22.8″E – Karsiyaka (Girne)
  • Boutique Anlage mit 52 exklusiven Einheiten 
  • direkt am Meer zwischen Villen (50m zum Meer) 
  • 15min in die Innenstadt. 40min zum Flughafen!
  • In 8 Minuten zum Casino
  • Phantastischer Bergblick
  • Top Restaurants und Einkaufsmöglichkeiten in unmittelbarer Nähe
  • Hochwertige Penthouse- und Gartenapartments
  • Modernes Gym & Amenities
  • Gated Community für maximale Exklusivität
  • TraumPool mit integrierter Sitzgruppe
  • Jede Einheit mit eigenem Stellplatz
  • Eigennutz oder organisierte Kurzzeitvermietung
  • Niedriges monatliches Hausgeld 

Technische Details

Sea Horizon bietet hochwertige 1- und 2-Schlafzimmer-Garten- und Penthouse-Apartments, die nach modernen Bau- und Qualitätsstandards errichtet werden. Das Projekt verbindet langlebige Bauweise mit durchdachter Technik und exklusiver Ausstattung.

Bauweise & Konstruktion

Das Gebäude wird in massiver Stahlbetonbauweise errichtet (C30 Ready-Mix-Beton). Das Dach besteht aus einer armierten Betondecke mit integrierter Wasser- und Wärmedämmung.
Zum Schutz vor aufsteigender Feuchtigkeit wird eine hochwertige Bitumen-Feuchtigkeitssperre auf Fundament- und Erdgeschossebene eingesetzt.

Die Außen- und Innenwände bestehen aus porosierten Tonziegeln bzw. Thermoblöcken mit verbesserter Wärmedämmung sowie zusätzlicher externer Wärmedämmung.

Böden, Fliesen & Treppen

In allen Apartments werden hochwertige Marmor- oder Keramikböden verlegt. Zwischen den Etagen sorgt eine integrierte Schalldämmung für erhöhten Wohnkomfort.
Terrassen und Balkone sind so gefliest, dass Wasser kontrolliert über verdeckte Ablaufrinnen in den Außenwänden abgeleitet wird.
Treppen und Kanten sind ebenfalls in Marmor oder Keramik ausgeführt.

Bäder & Sanitär

Die Duschen sind bodengleich, mit rahmenlosen Glasabtrennungen ausgestattet und verfügen über verdeckt installierte Leitungen für eine klare, moderne Optik.
Alle Sanitärarmaturen sind verchromt und CE-zertifiziert.
Wandhängende Toiletten mit Geberit-Unterputzspülsystemen gehören zur Standardausstattung.
Zusätzlich verfügen die Badezimmer über Fußbodenheizung.

Fenster, Türen & Balkone

Die Apartments sind mit hochwertigen, doppelt verglasten Aluminium-Fenstern mit Wärme- und Schalldämmung ausgestattet.
Außen- und Terrassentüren bestehen aus Aluminium-Systemen mit Wärmebarriere und Solarglas.
Balkone und Terrassen verfügen über Edelstahl-Geländer.

Elektrik & Technik

Die komplette Elektroinstallation erfolgt nach lokalen Vorschriften und britischen Standards.
Alle Stromkreise sind mit FI-Schutzschaltern (RCD) ausgestattet.
Bäder verfügen über abgehängte Decken mit integrierten Spotlights.

Klima, Wasser & Infrastruktur

Jede Einheit ist für Mitsubishi-Klimaanlagen vorbereitet, inklusive verdeckt verlegter Leitungen.
Ein zentrales Druckwassersystem mit Pumpstation sorgt – vorbehaltlich behördlicher Genehmigung – für gleichmäßigen Wasserdruck.
Das Abwassersystem ist so ausgelegt, dass Toilettenpapier problemlos gespült werden kann. Zusätzlich ist eine Regenwasser-Infrastruktur vorgesehen.

Apartment- & Gemeinschaftsausstattung

  • Ausgestattete Schlafzimmer, Wohn- und Küchenbereiche

  • Luxus-Einbauküchen

  • Einbauschränke

  • Abgehängte Decken

  • Balkon oder Terrasse

  • Boiler

  • Zentrale Internet-Anbindung

  • Zentrales Generator-System

  • Außenparkplätze

Gemeinschaftsbereiche

  • Gemeinschaftspool

  • Gepflegte Gartenanlagen

  • Fitness- & Gym-Bereich

  • Gemeinschaftsflächen mit Duschen, Sonnenliegen und Sonnenschirmen (gemäß Wartungsvertrag)

Garantie

Für die Tragkonstruktion gilt eine 5-jährige Baugarantie.

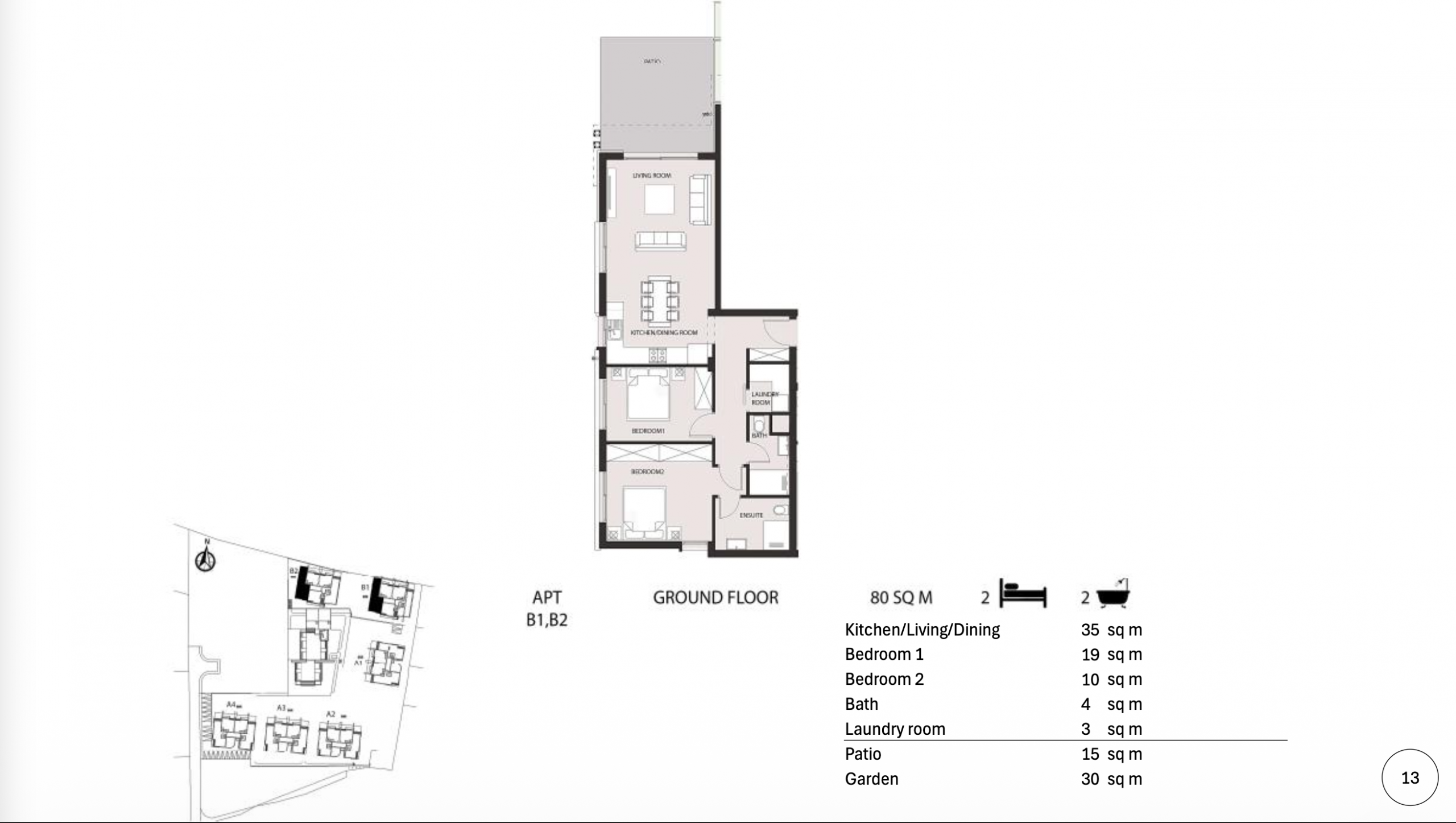
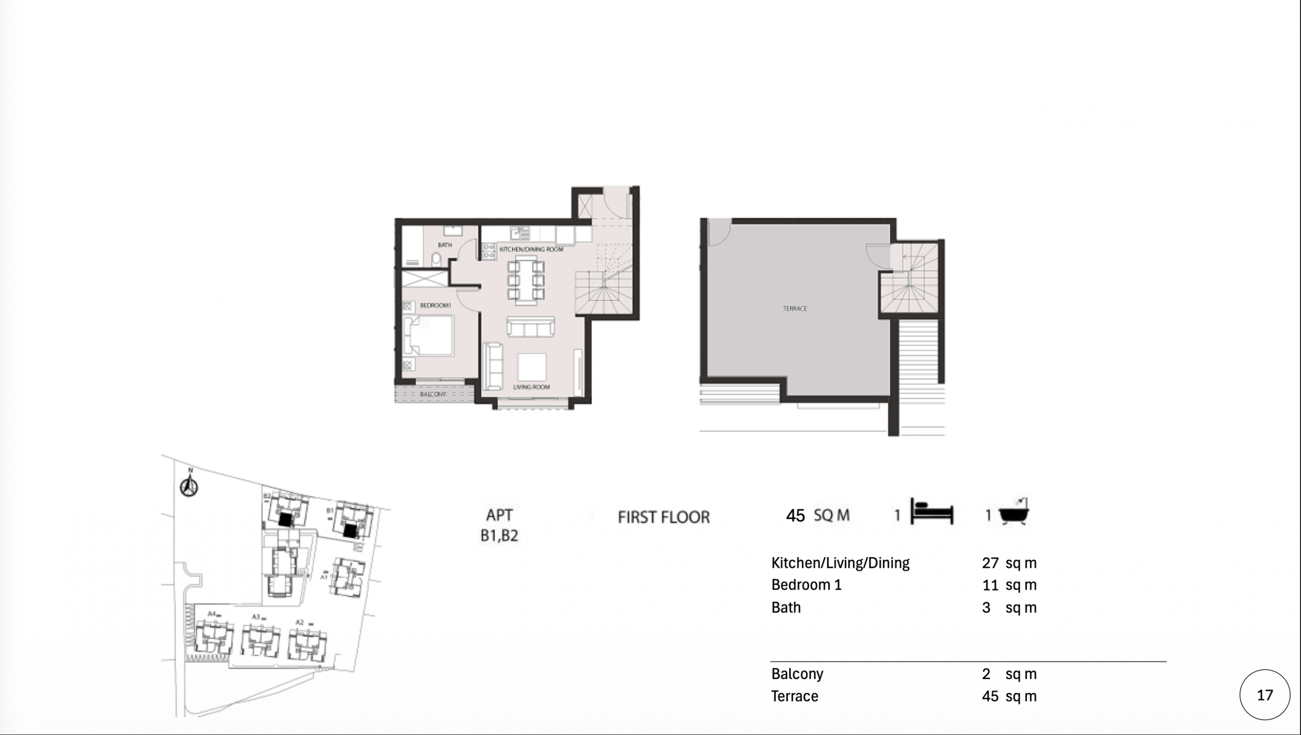
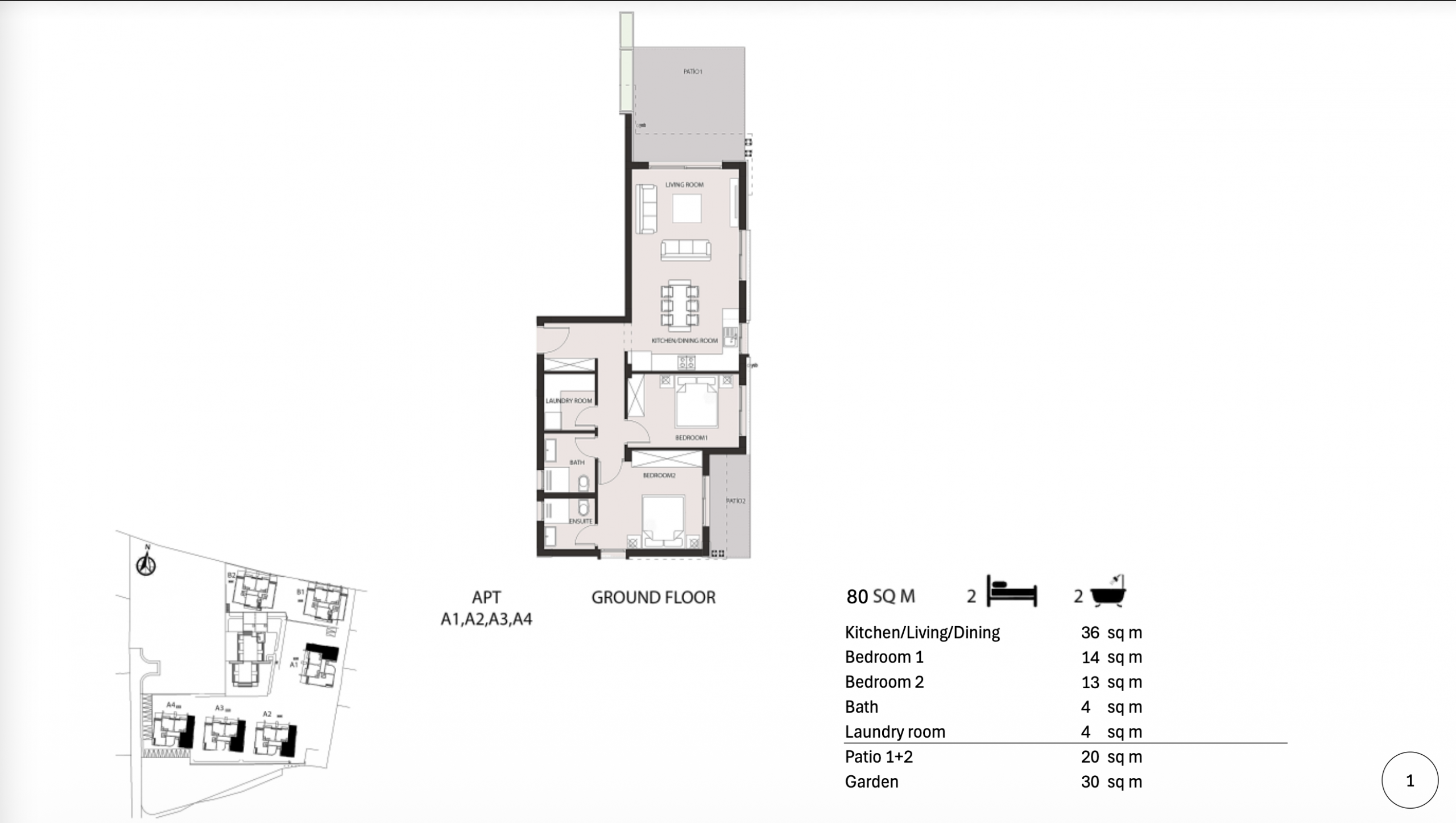
Grundrisse

Für alle weiteren Unterlagen, klicke hier.